Mieszkanie, Raków
Raków, Warszawa, mazowieckie
- 446 743 zł
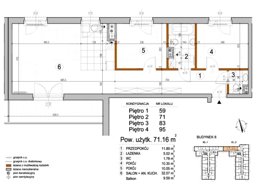
- 70,32 m²
- 6 353 zł/m²
Mieszkanie, Raków
Raków, Warszawa, mazowieckie
zaktualizowane:
23 sierpnia 2016
Mieszkanie, Raków
Zaktualizowane: 23 sierpnia 2016
446 743 zł 70,32 m² 6 353 zł/m²
3/4
3
2017
-
-
Piętro:
3/4Liczba pokoi:
3Rok budowy:
2017Miejsce parkingowe:
-Stan mieszkania:
-Szczegóły ogłoszenia
- Typ oferty: mieszkanie na sprzedaż
- Cena: 446 743 zł (6 353 zł/m²)
- Rynek: pierwotny (zobacz inne nowe mieszkania w Warszawie)
- Forma własności: własność
- Charakterystyka mieszkania: 70,32 m², 3 pokoje
- Budynek: blok mieszkalny; rok budowy: 2017 (blok w nowym budownictwie)
- technika budowy: tradycyjna/cegła
- winda
- Rozkład mieszkania: piętro 3/4, jednopoziomowe
- Źródło: biuro nieruchomości: Nieruchomości Waldemar Kobryński, zaktualizowane: 23.08.2016
- numer ogłoszenia: 283910013
Lokalizacja
- Adres: Raków, Raków, Warszawa, mazowieckie
Opis nieruchomości
Osiedle Nowy Raków znajduje się w dzielnicy Włochy. Składa się z kilku budynków wielorodzinnych wraz z infrastrukturą handlową i użytkową. Na terenie osiedla zaplanowano garaże podziemne oraz tereny zielone i place zabaw dla dzieci. Osiedle będzie ogrodzone i monitorowane. Do wszystkich mieszkań przynależą tarasy lub balkony, a na parterze ogródki.
Doskonale rozwinięta sieć komunikacji miejskiej zapewnia łatwy i szybki dojazd zarówno do centrum miasta jak i m.in. do Lotniska im. (...)

