Apartament, Wola
Wola, Warszawa, mazowieckie
- 340 600 zł
- 38,54 m²
- 8 837,57 zł/m²
Apartament, Wola
Wola, Warszawa, mazowieckie
zaktualizowane:
7 stycznia 2016
Apartament, Wola
Zaktualizowane: 7 stycznia 2016
340 600 zł 38,54 m² 8 837,57 zł/m²
1/10
2
2015
garaż w bryle budynku
dobry
Piętro:
1/10Liczba pokoi:
2Rok budowy:
2015Miejsce parkingowe:
garaż w bryle budynkuStan mieszkania:
dobrySzczegóły ogłoszenia
- Typ oferty: mieszkanie na sprzedaż
- Cena: 340 600 zł (8 837,57 zł/m²)
- Rynek: pierwotny (zobacz inne nowe mieszkania w Warszawie)
- Dostępne: natychmiast
- Forma własności: własność
- Charakterystyka mieszkania: 38,54 m², 2 pokoje, 1 łazienka; stan: dobry
- instalacje: nowe / wymienione; okna: nowe / wymienione, drewniane
- Budynek: apartamentowiec; rok budowy: 2015
- technika budowy: nowa technologia
- winda, dostosowany do osób niepełnosprawnych
- Rozkład mieszkania: piętro 1/10, jednostronne, środkowe, jednopoziomowe
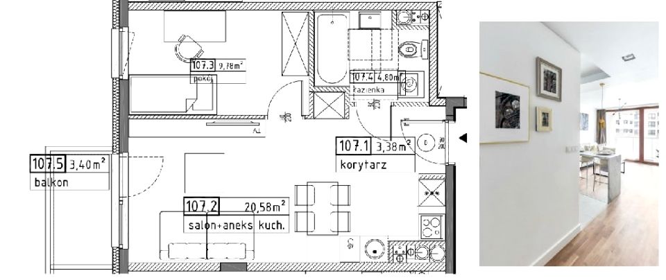
- Powierzchnia dodatkowa: loggia (3,40 m²)
- Kuchnia: aneks kuchenny, z oknem
- Media: ogrzewanie: centralne ogrzewanie, miejskie
- Internet
- Bezpieczeństwo: ochrona, drzwi antywłamaniowe, teren ogrodzony
- Miejsce parkingowe: garaż w bryle budynku
- Źródło: biuro nieruchomości: WAWAHOME, zaktualizowane: 07.01.2016
- numer ogłoszenia: WAW-MS-7742
Lokalizacja
- Adres: Wola, Warszawa, mazowieckie
- Otoczenie: działki zabudowane
- cicho (spokojna okolica)
- W pobliżu: przystanek autobusowy, przystanek tramwajowy, plac zabaw
Opis nieruchomości
MIESZKANIE 38,5m2 + 3,4m2 BALKONU! 341 TYS - CENA ZAWIERA WYKOŃCZENIE POD KLUCZ!
APARTAMENTOWIEC WOLA
Przytulne mieszkanie 38,54m2 położone w nowo powstającej inwestycji na przeżywającej renesans w warszawskiej Woli.
W mieszkaniu odnajdziemy salon 20,5m2 połączony z aneksem oraz sypialnię 10m2. Łazienka to 4,8m2 dobrze wykorzystanej powierzchni. Całość uzupełnia przedpokój. (...)

