Mieszkanie, Mokotów
Mokotów, Warszawa, mazowieckie
- 488 900 zł
- 74,60 m²
- 6 553,62 zł/m²
Mieszkanie, Mokotów
Mokotów, Warszawa, mazowieckie
zaktualizowane:
9 czerwca 2016
Mieszkanie, Mokotów
Zaktualizowane: 9 czerwca 2016
488 900 zł 74,60 m² 6 553,62 zł/m²
1/9
3
2015
-
bardzo dobry
Piętro:
1/9Liczba pokoi:
3Rok budowy:
2015Miejsce parkingowe:
-Stan mieszkania:
bardzo dobrySzczegóły ogłoszenia
- Typ oferty: mieszkanie na sprzedaż
- Cena: 488 900 zł (6 553,62 zł/m²)
- Rynek: pierwotny (zobacz inne nowe mieszkania w Warszawie)
- Forma własności: własność
- Charakterystyka mieszkania: 74,60 m², 3 pokoje, 1 łazienka; stan: bardzo dobry
- instalacje: nowe / wymienione; okna: nowe / wymienione, plastikowe
- Budynek: blok mieszkalny; rok budowy: 2015
- winda
- Rozkład mieszkania: piętro 1/9, trójstronne, środkowe, jednopoziomowe
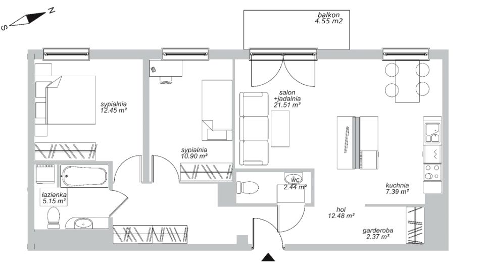
- Powierzchnia dodatkowa: balkon (4,55 m²)
- Kuchnia: aneks kuchenny, z oknem
- Łazienka: oddzielne WC
- Media: ogrzewanie: centralne ogrzewanie, miejskie
- Bezpieczeństwo: monitoring/kamery, drzwi antywłamaniowe
- Miejsce parkingowe: garaż
- Źródło: biuro nieruchomości: WAWAHOME, zaktualizowane: 09.06.2016
- numer ogłoszenia: WAW-MS-8417
Lokalizacja
- Adres: Mokotów, Warszawa, mazowieckie
- Otoczenie: osiedle domów wielorodzinnych
- cicho
- W pobliżu: przystanek autobusowy, przystanek tramwajowy, metro, plac zabaw
Opis nieruchomości
489 TYS! MIESZKANIE 74m2 + 4,5m2 BALKONU! OKAZJA!
Przestronne, funkcjonalne, komfortowe trzypokojowe mieszkanie, położone w centralnej części Mokotowa w nowo powstającej inwestycji.
Do dyspozycji mam, przestronny salon 29m2 połączony z aneksem kuchennym oraz dwie sypialnie 13m2 i 11m2. Całość uzupełnia łazienka około 5m2, oddzielne wc oraz hol - 12m2, gdzie odnajdziemy miejsce na szafę wnękową. Dodatkowo mamy garderobę 2,5m2. (...)

