Apartament, Śródmieście
Śródmieście, Warszawa, mazowieckie
- 1 584 281 zł
- 109,51 m²
- 14 467 zł/m²
Apartament, Śródmieście
Śródmieście, Warszawa, mazowieckie
zaktualizowane:
18 grudnia 2015
Apartament, Śródmieście
Zaktualizowane: 18 grudnia 2015
1 584 281 zł 109,51 m² 14 467 zł/m²
4/7
4
2015
garaż
do wykończenia
Piętro:
4/7Liczba pokoi:
4Rok budowy:
2015Miejsce parkingowe:
garażStan mieszkania:
do wykończeniaSzczegóły ogłoszenia
- Typ oferty: mieszkanie na sprzedaż
- Cena: 1 584 281 zł (14 467 zł/m²)
- Rynek: pierwotny (zobacz inne nowe mieszkania w Warszawie)
- Dostępne: grudzień 2015
- Możliwa zamiana: NIE
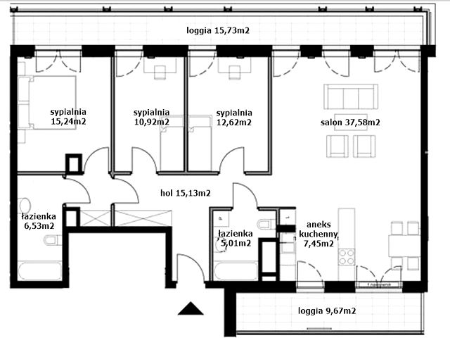
- Charakterystyka mieszkania: 109,51 m², 4 pokoje, 2 łazienki; stan: do wykończenia
- okna: drewniane, nowe / wymienione
- Budynek: apartamentowiec; rok budowy: 2015 (blok w nowym budownictwie)
- winda
- Rozkład mieszkania: piętro 4/7
- Powierzchnia dodatkowa: balkon
- Kuchnia: z oknem
- Media: ogrzewanie: centralne ogrzewanie, miejskie
- Internet, telefon, telewizja kablowa
- Bezpieczeństwo: ochrona
- Miejsce parkingowe: garaż
- Źródło: biuro nieruchomości: Notus Mediator, zaktualizowane: 18.12.2015
- numer ogłoszenia: 47/4567/OMS
Lokalizacja
- Adres: Śródmieście, Warszawa, mazowieckie
Opis nieruchomości
Apartament czteropokojowy w stanie deweloperskim na 4 piętrze z dwiema loggiami 15,73 i 9,67m2. Składa się z salonu 37,58m2, widnego aneksu 7,45m2, trzech sypialni 15,24, 12,62 i 10,92m2, dwóch łazienek 6,53 i 5,01m2, przestronnego holu 15,13m2. Z salonu i każdej sypialni wyjście na loggię 15,73m2, z drugiem strony wyjście na mniejszą loggię 9,67m2.
Ekspozycja okien płn.-wsch.,płd.-zach. Wysokość apartamentu 2,8m. (...)

