Mieszkanie Warszawa
Sadyba, Warszawa, mazowieckie
- 1 146 955 zł
- 59 m²
- 19 440 zł/m²
Janusz
Skontaktuj się
Mieszkanie Warszawa
Sadyba, Warszawa, mazowieckie
zaktualizowane:
22 stycznia 2026
Mieszkanie Warszawa
Zaktualizowane: 22 stycznia 2026
1 146 955 zł 59 m² 19 440 zł/m²
5/7
3
2024
w garażu podziemnym
do wykończenia
Zobacz na mapie
Piętro:
5/7Liczba pokoi:
3Rok budowy:
2024Miejsce parkingowe:
w garażu podziemnymStan mieszkania:
do wykończeniaSzczegóły ogłoszenia
- Typ oferty: mieszkanie na sprzedaż
- Cena: 1 146 955 zł (19 440 zł/m²)
- Rynek: pierwotny (zobacz inne nowe mieszkania w Warszawie)
- Forma własności: własność
- Charakterystyka mieszkania: 59 m², 3 pokoje; stan: do wykończenia
- okna: plastikowe
- Budynek: blok mieszkalny; rok budowy: 2024
- winda
- Rozkład mieszkania: piętro 5/7, jednopoziomowe
- Powierzchnia dodatkowa: balkon (14,60 m²)
- Kuchnia: aneks kuchenny
- Łazienka: oddzielne WC
- Media: ogrzewanie: miejskie
- Internet, telewizja kablowa
- Bezpieczeństwo: domofon/wideofon
- Miejsce parkingowe: w garażu podziemnym
- Źródło: biuro nieruchomości: NOWE MIESZKANIA, zaktualizowane: 22.01.2026
- numer ogłoszenia: 349423
Kupujący nie płaci prowizji
Lokalizacja
- Adres: Sadyba, Warszawa, mazowieckie
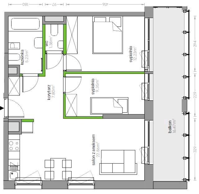
Opis nieruchomości
Proponowane mieszkanie o powierzchni 59 m2 położone na V piętrze składa się z:
- salonu z aneksem kuchennym 22,9 m2
- dwóch sypialni 12,2 m2 i 9,3 m2,
- łazienki 5,2 m2,
- wc 1,4 m2,
- holu 7,8 m2,
- balkonu 14,6 m2
Miejsce garażowe 46.000 zł
Dostępne mieszkania od 46 m2 do 60 m2.
Idealna propozycja dla rodzin z dziećmi, które chcą zamieszkać w miejscu, gdzie wszystko będzie pod ręką. (...)
883 666...
883 666 388

