Apartament Warszawa
Targówek, Warszawa, mazowieckie
- 712 098 zł
- 51 m²
- 13 963 zł/m²
Janusz
Skontaktuj się
Apartament Warszawa
Targówek, Warszawa, mazowieckie
zaktualizowane:
28 grudnia 2025
Apartament Warszawa
Zaktualizowane: 28 grudnia 2025
712 098 zł 51 m² 13 963 zł/m²
Nie zwlekaj z kontaktem
bardzo wysokie zainteresowanie
8/8
2
2025
w garażu podziemnym
do wykończenia
Zobacz na mapie
Piętro:
8/8Liczba pokoi:
2Rok budowy:
2025Miejsce parkingowe:
w garażu podziemnymStan mieszkania:
do wykończeniaSzczegóły ogłoszenia
- Typ oferty: mieszkanie na sprzedaż
- Cena: 712 098 zł (13 963 zł/m²)
- Rynek: pierwotny (zobacz inne nowe mieszkania w Warszawie)
- Forma własności: własność
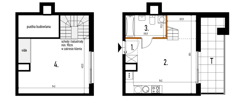
- Charakterystyka mieszkania: 51 m², 2 pokoje; stan: do wykończenia
- okna: plastikowe
- Budynek: apartamentowiec; rok budowy: 2025
- winda
- Rozkład mieszkania: piętro 8/8, dwupoziomowe
- Powierzchnia dodatkowa: balkon (15 m²)
- Kuchnia: aneks kuchenny
- Media: ogrzewanie: miejskie
- Internet
- Bezpieczeństwo: domofon/wideofon
- Miejsce parkingowe: w garażu podziemnym
- Źródło: biuro nieruchomości: NOWE MIESZKANIA, zaktualizowane: 28.12.2025
- numer ogłoszenia: 345589
Kupujący nie płaci prowizji
Lokalizacja
- Adres: Targówek, Warszawa, mazowieckie
Opis nieruchomości
Mamy do zaoferowania Państwu 2-poziomowe mieszkanie o powierzchni 51 m2. Mieszkanie położone jest w dobrym punkcie komunikacyjnym, w pobliżu trasy S8 oraz nieopodal metra - tylko 2 przystanki autobusem do metra.
Proponowane mieszkanie składa się z salonu z aneksem kuchennym 24,3 m2, łazienki 5,2 m2, holu 1,7 m2, tarasu 10,2 m2 i antresoli 20,4 m2. (...)
883 666...
883 666 388

