Mieszkanie Warszawa
Włochy, Warszawa, mazowieckie
- 742 139 zł
- 49,10 m²
- 15 115 zł/m²
Janusz
Skontaktuj się
Mieszkanie Warszawa
Włochy, Warszawa, mazowieckie
zaktualizowane:
4 grudnia 2025
Mieszkanie Warszawa
Zaktualizowane: 4 grudnia 2025
742 139 zł 49,10 m² 15 115 zł/m²
parter/5
2
2027
-
do wykończenia
Zobacz na mapie
Piętro:
parter/5Liczba pokoi:
2Rok budowy:
2027Miejsce parkingowe:
-Stan mieszkania:
do wykończeniaSzczegóły ogłoszenia
- Typ oferty: mieszkanie na sprzedaż
- Cena: 742 139 zł (15 115 zł/m²)
- Rynek: pierwotny (zobacz inne nowe mieszkania w Warszawie)
- Forma własności: własność
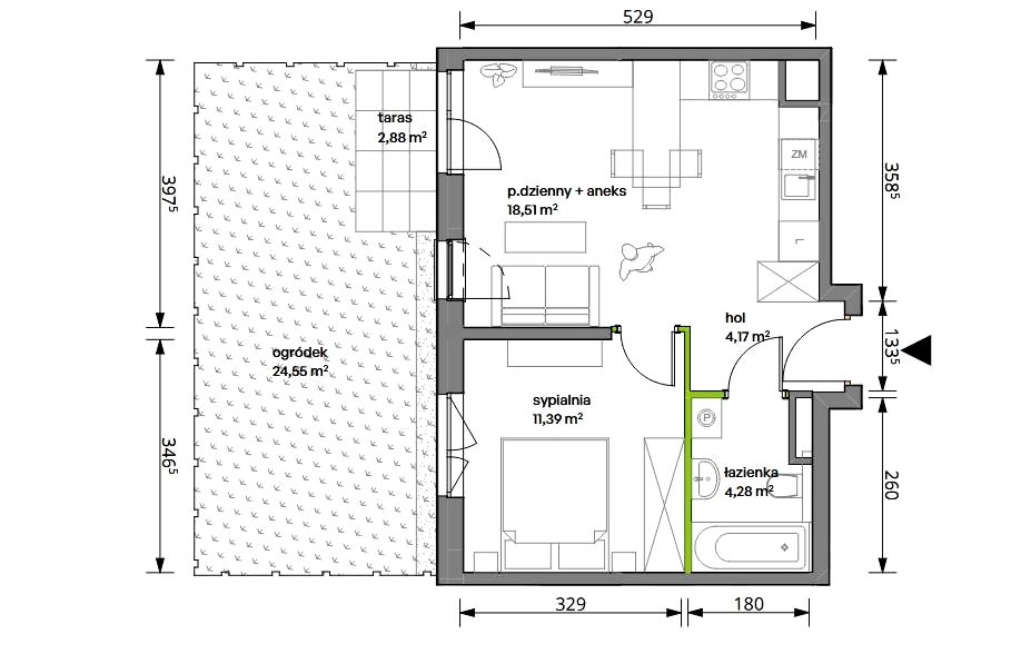
- Charakterystyka mieszkania: 49,10 m², 2 pokoje; stan: do wykończenia
- okna: plastikowe
- Budynek: rok budowy: 2027
- winda
- Rozkład mieszkania: piętro 0/5, jednopoziomowe
- Powierzchnia dodatkowa: balkon (15,30 m²), ogródek
- Kuchnia: aneks kuchenny
- Media: ogrzewanie: miejskie
- Internet, telewizja kablowa
- Bezpieczeństwo: domofon/wideofon
- Źródło: biuro nieruchomości: NOWE MIESZKANIA, zaktualizowane: 04.12.2025
- numer ogłoszenia: 342191
Kupujący nie płaci prowizji
Lokalizacja
- Adres: Włochy, Warszawa, mazowieckie
Opis nieruchomości
5 MINUT DO SKM! ŻYJ BEZ KORKÓW! ODDZIELNE DRUGIE WC.
Prezentujemy Państwu apartament o powierzchni 49,1 m2 na parterze. Apartament składa się z salonu z aneksem kuchennym, sypialni, łazienki z wc, oddzielnego wc, holu, tarasu 3 m2 oraz ogródka 15,3 m2. Apartament zlokalizowany jest na cichym i spokojnym osiedlu mieszkaniowym w warszawskich Włochach. (...)
883 666...
883 666 388

