Apartament Warszawa
Grochów, Warszawa, mazowieckie
- 1 019 520 zł
- 77,80 m²
- 13 104 zł/m²
Janusz
Skontaktuj się
Apartament Warszawa
Grochów, Warszawa, mazowieckie
zaktualizowane:
5 grudnia 2025
Apartament Warszawa
Zaktualizowane: 5 grudnia 2025
1 019 520 zł 77,80 m² 13 104 zł/m²
parter/5
4
2026
-
do wykończenia
Zobacz na mapie
Piętro:
parter/5Liczba pokoi:
4Rok budowy:
2026Miejsce parkingowe:
-Stan mieszkania:
do wykończeniaSzczegóły ogłoszenia
- Typ oferty: mieszkanie na sprzedaż
- Cena: 1 019 520 zł (13 104 zł/m²)
- Rynek: pierwotny (zobacz inne nowe mieszkania w Warszawie)
- Forma własności: własność
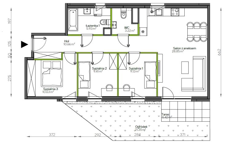
- Charakterystyka mieszkania: 77,80 m², 4 pokoje; stan: do wykończenia
- Budynek: apartamentowiec; rok budowy: 2026
- winda, dostosowany do osób niepełnosprawnych
- Rozkład mieszkania: piętro 0/5, jednopoziomowe
- Powierzchnia dodatkowa: balkon (27 m²), ogródek
- Kuchnia: aneks kuchenny
- Łazienka: oddzielne WC
- Media: ogrzewanie: miejskie
- Bezpieczeństwo: domofon/wideofon, ochrona
- Źródło: biuro nieruchomości: NOWE MIESZKANIA, zaktualizowane: 05.12.2025
- numer ogłoszenia: 342463
Kupujący nie płaci prowizji
Lokalizacja
- Adres: Grochów, Warszawa, mazowieckie
Opis nieruchomości
BLISKO PLANOWANEJ STACJI METRA
Apartament o powierzchni 77,8 m2 usytuowany jest na parterze i składa się z salonu z kuchnią, 3 sypialni, łazienki z wc, oddzielnego wc, holu oraz ogródka z tarasem 27 m2.
Pozostałe atuty:
- plac zabaw
- siłownia plenerowa
- rowerownia
- w pobliżu sklepy, usługi, Rondo Wiatraczna, Szpital Szaserów
- bliskość parków
- bezpieczna i spokojna dzielnica
- bliskość linii tramwajowych (...)
883 666...
883 666 388

