Mieszkanie Raków, Łopuszańska / W. Opackiego
Łopuszańska / W. Opackiego, Raków, Warszawa, mazowieckie
- 915 212 zł
- 58,48 m²
- 15 650 zł/m²
Biuro sprzedaży
Skontaktuj się
Mieszkanie Raków, Łopuszańska / W. Opackiego
Łopuszańska / W. Opackiego, Raków, Warszawa, mazowieckie
zaktualizowane:
12 grudnia 2025
Mieszkanie Raków, Łopuszańska / W. Opackiego
Inwestycja: Neo Nova Ochota
Zaktualizowane: 12 grudnia 2025
915 212 zł 58,48 m² 15 650 zł/m²
IV kwartał 2026
3/5
3
garaż
deweloperski
Zobacz na mapie
Termin realizacji:
IV kwartał 2026Piętro:
3/5Liczba pokoi:
3Miejsce postojowe:
garażStan mieszkania:
deweloperskiSzczegóły ogłoszenia
- Typ oferty: mieszkanie na sprzedaż
- Cena: 915 212 zł (15 650 zł/m²)
- Termin realizacji: IV kwartał 2026
- Status oferty: dostępne
- Rynek: pierwotny (oferta dewelopera)
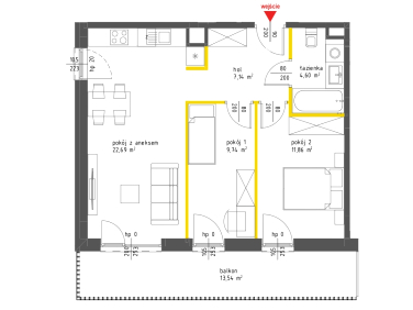
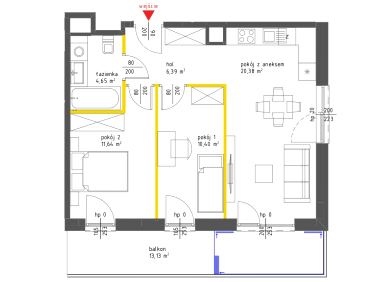
- Charakterystyka mieszkania: 58,48 m², 3 pokoje, 1 łazienka; stan: deweloperski
- Budynek: blok mieszkalny
- winda
- Rozkład mieszkania: piętro 3/5, jednopoziomowe
- Powierzchnia dodatkowa: balkon (8,3 m²)
- Kuchnia: aneks kuchenny
- Miejsce/a postojowe: w garażu wielostanowiskowym; garaż w bryle budynku, winda z poziomu garażu
- Źródło: oferta dewelopera: Grupa Victoria Dom, zaktualizowane: 12.12.2025
- sygnatura ogłoszenia: 6/38
Lokalizacja
- Inwestycja: Neo Nova Ochota
- Adres: Łopuszańska / W. Opackiego, Raków, Warszawa, mazowieckie
- Otoczenie: osiedle bloków mieszkalnych, obiekty handlowo-usługowe, obiekty przemysłowe
- Na terenie inwestycji: rowerownia, wózkownia, boksy rowerowe, siłownia plenerowa
- W pobliżu żłobek, przedszkole, uczelnia wyższa, fitness, siłownia, przystanek autobusowy, dworzec kolejowy, supermarket, centrum handlowe, stacja benzynowa, bank
Opis nieruchomości
Zapraszamy do zapoznania się z ofertą 3-pokojowego mieszkania, składającego się z pokoju dziennego z aneksem kuchennym, 2 sypialni, łazienki, WC i balkonu. (...)

Inwestycja realizowana przez:
Grupa Victoria Dom
Biuro sprzedaży
Łopuszańska 55
Warszawa 02-495
| MieszkanieWirtualna wizyta2/44 | 54,66 m² | 16 010,15 zł/m² | parter/6 | 3 | 875 115 zł |
| MieszkanieWirtualna wizyta | ||||
|
||||
| 2/44 |
- Budynek: blok mieszkalny
- Stan wykończenia: deweloperski
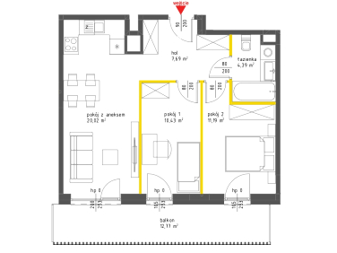
- Charakterystyka mieszkania: jednopoziomowe, aneks kuchenny, 1 łazienka
- Ogrzewanie: miejskie
- Powierzchnia dodatkowa: ogródek (56,5 m²)
- Miejsce/a postojowe:: w garażu wielostanowiskowym; garaż w bryle budynku, winda z poziomu garażu
- Udogodnienia: winda
Zapraszamy do zapoznania się z ofertą 3-pokojowego mieszkania, składającego się z pokoju dziennego z aneksem kuchennym, dwóch sypialni, łazienki i ogródka.
Więcej
sygnatura: 2/44
| Mieszkanie1/20 | 57,60 m² | 15 761,46 zł/m² | 4/6 | 3 | 907 860 zł |
| Mieszkanie | ||||
|
||||
| 1/20 |
| Mieszkanie1/23 | 55,17 m² | 15 950,21 zł/m² | 4/6 | 3 | 879 973 zł |
| Mieszkanie | ||||
|
||||
| 1/23 |
| Mieszkanie1/26 | 57,60 m² | 15 800 zł/m² | 5/6 | 3 | 910 080 zł |
| Mieszkanie | ||||
|
||||
| 1/26 |
| Mieszkanie2/7 | 53,25 m² | 15 700 zł/m² | 1/6 | 2 | 836 025 zł |
| Mieszkanie | ||||
|
||||
| 2/7 |
| Mieszkanie2/17 | 55,89 m² | 15 900 zł/m² | 3/6 | 3 | 888 651 zł |
| Mieszkanie | ||||
|
||||
| 2/17 |
| Mieszkanie2/31 | 55,89 m² | 16 100 zł/m² | 5/6 | 3 | 899 829 zł |
| Mieszkanie | ||||
|
||||
| 2/31 |
| Mieszkanie2/41 | 53,25 m² | 16 200 zł/m² | 6/6 | 3 | 862 650 zł |
| Mieszkanie | ||||
|
||||
| 2/41 |
| Mieszkanie2/51 | 54,92 m² | 15 856,99 zł/m² | 1/6 | 3 | 870 866 zł |
| Mieszkanie | ||||
|
||||
| 2/51 |
| Mieszkanie2/53 | 62,70 m² | 15 400 zł/m² | 2/6 | 3 | 965 580 zł |
| Mieszkanie | ||||
|
||||
| 2/53 |
Więcej
Biuro sprzedaży
799 352...
799 352 384










