Sprzedane
Mieszkanie Annopol, ul. Marywilska 11
Marywilska 11, Annopol, Warszawa, mazowieckie
- 94,52 m²
Biuro Sprzedaży
Skontaktuj się
Mieszkanie Annopol, ul. Marywilska 11
Marywilska 11, Annopol, Warszawa, mazowieckie
zaktualizowane:
29 października 2024
Mieszkanie Annopol, ul. Marywilska 11
Inwestycja: Miasteczko Nova Sfera
Zaktualizowane: 29 października 2024
94,52 m²
oddana do użytku
parter/3
4
garaż
deweloperski
Zobacz na mapie
Stan inwestycji:
oddana do użytkuPiętro:
parter/3Liczba pokoi:
4Miejsce postojowe:
garażStan mieszkania:
deweloperskiSzczegóły ogłoszenia
- Typ oferty: mieszkanie na sprzedaż
- Termin realizacji: 2024, oddana do użytku
- Status oferty: sprzedane
- Rynek: pierwotny (oferta dewelopera)
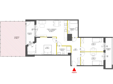
- Charakterystyka mieszkania: 94,52 m², 4 pokoje, 2 łazienki; stan: deweloperski
- Budynek: blok mieszkalny
- winda
- Rozkład mieszkania: piętro 0/3, jednopoziomowe
- Powierzchnia dodatkowa: loggia, ogródek (37,5 m²)
- Kuchnia: aneks kuchenny
- Miejsce/a postojowe: w garażu wielostanowiskowym; garaż w bryle budynku, winda z poziomu garażu
- Źródło: oferta dewelopera: Victoria Dom, zaktualizowane: 29.10.2024
- sygnatura ogłoszenia: 141
Lokalizacja
- Inwestycja: Miasteczko Nova Sfera
- Adres: Marywilska 11, Annopol, Warszawa, mazowieckie
- Otoczenie: osiedle bloków mieszkalnych, tereny zielone i rekreacyjne, obiekty handlowo-usługowe
- Na terenie inwestycji: plac zabaw, Rowerownia
- W pobliżu przedszkole, szkoła podstawowa, siłownia, przychodnia, przystanek autobusowy, przystanek tramwajowy, dworzec kolejowy, supermarket, hotel, stacja benzynowa
Opis nieruchomości
Przestronne 4-pokojowe mieszkanie z aneksem kuchennym, dwoma łazienkami, dwoma loggiami i ogródkiem. (...)
| Mieszkanie85 | 44,62 m² | 14 550 zł/m² | 2/3 | 2 | 649 221 zł |
| Mieszkanie | ||||
|
||||
| 85 |
- Budynek: blok mieszkalny
- Stan wykończenia: deweloperski
- Charakterystyka mieszkania: jednopoziomowe, aneks kuchenny, 1 łazienka
- Powierzchnia dodatkowa: loggia
- Miejsce/a postojowe:: w garażu wielostanowiskowym; garaż w bryle budynku, winda z poziomu garażu
- Udogodnienia: winda
Przestronne 2-pokojowe mieszkanie z aneksem kuchennym, łazienką i loggią. Lokal znajduje się w inwestycji Miasteczko Nova Sfera na pograniczu Białołęki i
Więcej
sygnatura: 85
| Mieszkanie136 | 57,23 m² | 13 671,68 zł/m² | 2/3 | 3 | 782 430 zł |
| Mieszkanie | ||||
|
||||
| 136 |
| MieszkanieV/91 | 32,88 m² | 15 300 zł/m² | 7/7 | 2 | 503 064 zł |
| Mieszkanie | ||||
|
||||
| V/91 |
| Mieszkanie3 | 54,57 m² | 13 851,84 zł/m² | parter/3 | 3 | 755 895 zł |
| Mieszkanie | ||||
|
||||
| 3 |
| Mieszkanie5 | 56,81 m² | 13 897,50 zł/m² | parter/3 | 3 | 789 517 zł |
| Mieszkanie | ||||
|
||||
| 5 |
| Mieszkanie10 | 58,08 m² | 13 757,08 zł/m² | 1/3 | 3 | 799 011 zł |
| Mieszkanie | ||||
|
||||
| 10 |
| Mieszkanie11 | 54,67 m² | 13 857,34 zł/m² | 1/3 | 3 | 757 581 zł |
| Mieszkanie | ||||
|
||||
| 11 |
| Mieszkanie12 | 54,62 m² | 13 859,04 zł/m² | 1/3 | 3 | 756 981 zł |
| Mieszkanie | ||||
|
||||
| 12 |
| Mieszkanie13 | 50,82 m² | 14 278,81 zł/m² | 1/3 | 3 | 725 649 zł |
| Mieszkanie | ||||
|
||||
| 13 |
| Mieszkanie23 | 54,68 m² | 13 957,88 zł/m² | 2/3 | 3 | 763 217 zł |
| Mieszkanie | ||||
|
||||
| 23 |
Więcej
Biuro Sprzedaży
799 375...
799 375 292











