Mieszkanie Stare Włochy, ul. Solipska
Solipska, Stare Włochy, Warszawa, mazowieckie
- 623 000 zł
- 79 m²
- 7 886,08 zł/m²
Mieszkanie Stare Włochy, ul. Solipska
Solipska, Stare Włochy, Warszawa, mazowieckie
zaktualizowane:
2 czerwca 2017
Mieszkanie Stare Włochy, ul. Solipska
Zaktualizowane: 2 czerwca 2017
623 000 zł 79 m² 7 886,08 zł/m²
parter/5
3
1994
-
dobry
Zobacz na mapie
Piętro:
parter/5Liczba pokoi:
3Rok budowy:
1994Miejsce parkingowe:
-Stan mieszkania:
dobrySzczegóły ogłoszenia
- Typ oferty: mieszkanie na sprzedaż
- Cena: 623 000 zł (7 886,08 zł/m²)
- Rynek: wtórny
- Forma własności: spółdzielcze własnościowe, księga wieczysta
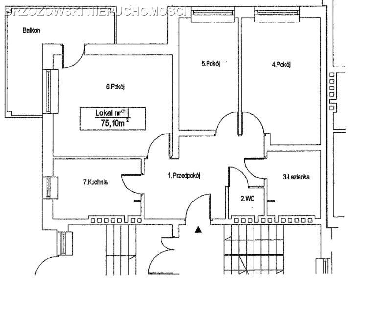
- Charakterystyka mieszkania: 79 m², 3 pokoje; stan: dobry
- Budynek: blok mieszkalny; rok budowy: 1994
- Rozkład mieszkania: piętro 0/5
- Powierzchnia dodatkowa: balkon
- Media: ogrzewanie: własne
- Miejsce parkingowe: brak przynależnego miejsca parkingowego
- Źródło: biuro nieruchomości: Brzozowski Nieruchomości, zaktualizowane: 02.06.2017
- numer ogłoszenia: BRZ-MS-150126-4
Lokalizacja
- Adres: Solipska, Stare Włochy, Warszawa, mazowieckie
Opis nieruchomości
Stare Włochy, ul. Solipska
Oferujemy Państwu lokal mieszkalny o pow. 75,1 m2 położony na wysokim parterze. Budynek jest częścią kameralnego osiedla o niskiej, czteropiętrowej zabudowie z dużą ilością zieleni oraz miejscami postojowymi dostępnymi dla mieszkańców.
Zaledwie dwa mieszkania na piętrze! Lokal został odmalowany w zeszłym roku, a kilka lat temu podczas dużego remontu wymieniono glazurę, terakotę, oraz położono nowe panele. (...)

