Biurowiec Ursynów, ul. Puławska
Puławska, Ursynów, Warszawa, mazowieckie
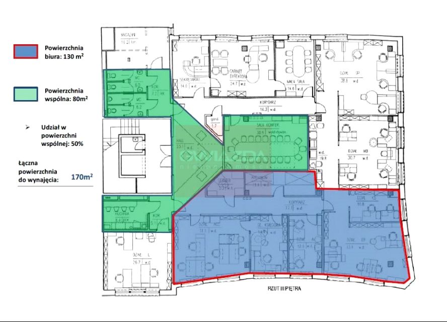
- 7 900 zł
- 170 m²
- 47 zł/m²
Biurowiec Ursynów, ul. Puławska
Puławska, Ursynów, Warszawa, mazowieckie
zaktualizowane:
1 września 2017
Biurowiec Ursynów, ul. Puławska
Zaktualizowane: 1 września 2017
7 900 zł 170 m² 47 zł/m²
biurowiec
-
-
-
Zobacz na mapie
Rodzaj budynku:
biurowiecPrzeznaczenie:
-Powierzchnia działki:
-Kondygnacje:
-Szczegóły ogłoszenia
- Typ oferty: budynek użytkowy do wynajęcia
- Czynsz wynajmu: 7 900 zł (47 zł/m²)
- Budynek: 170 m²
- biurowiec
- Miejsce parkingowe: brak przynależnych miejsc parkingowych
- Źródło: biuro nieruchomości: Gwiazda Nieruchomości, zaktualizowane: 01.09.2017
- numer ogłoszenia: BW-10962
Opis nieruchomości
biuro do wynajęcia Ursynów, ulica Puławska /Pyry.
Dostępna powierzchnia 130 mkw. do indywidualnego użytku w tym cztery pomieszczenia biurowe + serwerownia + magazynek. Plus powierzchnia 40 mkw. udział w powierzchni wykorzystywanej przez innych najemców: w tym sanitariaty, kuchnia, sala konferencyjna.
Biuro o dobrym standardzie, klimatyzacja, wentylacja mechaniczna, okablowanie strukturalne. (...)

